+16
Irigny (69540)

Maison 5 pièce(s) 4 chambre(s) 126 m²

805 m²
470 000 €
Réf 1120 BMV

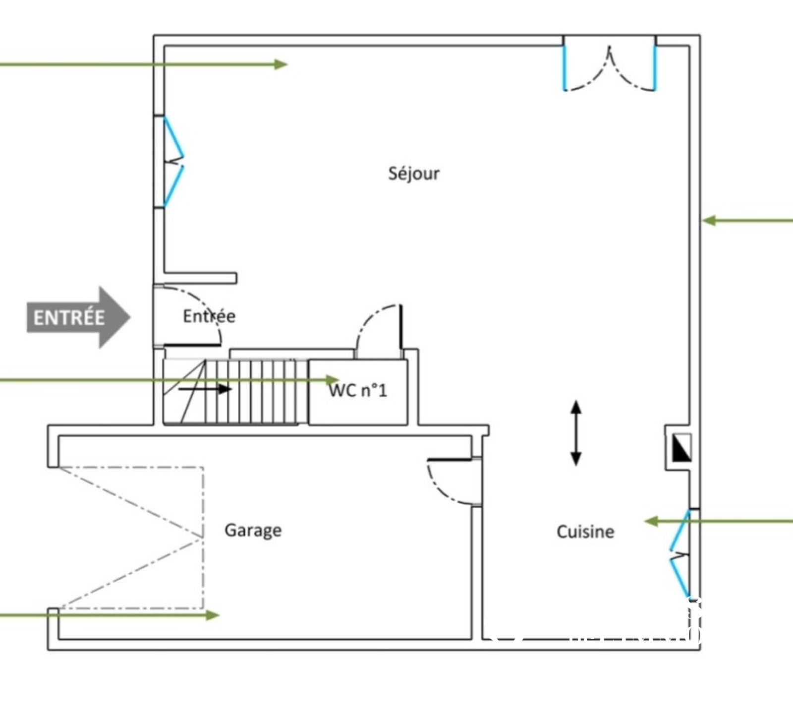
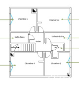
Située sur les premières hauteurs de la coline d'Irigny, dans une impasse, cette maison édifiée sur une parcelle de 800 m2 en partie boisée se compose : Au premier niveau d’une vaste pièce de vie comprenant salle à manger, séjour et cuisine. Vous y trouverez également un garage attenant, équipé d’une prise électrique adaptée pour les véhicules électriques. À l'étage on y retrouve : quatre chambres idéalement réparties, une salle d’eau et une salle de bain. La maison bénéficie de fenêtres en double vitrage, d’un chauffage par chaudière gaz à condensation, complété par un poêle, ainsi que d’une production d’eau chaude via chaudière. Le bien se situe à moins de 10 minutes à pied de la gare d'Irigny, à 2 minutes des bus 18 et 15 Express, et à environ 10 minutes à pied du centre du village. Pour plus d'informations ou pour organiser une visite, contactez Les Gones de l'Immo


Les informations sur les risques auxquels ce bien est exposé sont disponibles sur le site Géorisques

Bilan énergétique

Diagnostics énergetiques
A propos de ce bien Caractéristiques de ce bien
  • Surface 126 m²
  • terrain 805 m²
  • 4 chambre(s)
  • construit en 1993
  • Chauffage individuel : chaudière (gaz)

Financier

Informations financières
Prix de vente honoraires TTC inclus 470 000 €
Taxe foncière annuelle 1 448 €

Autour du bien

Découvrez le quartier

Simulation

Calcul des mensualités
* Champs obligatoires
Les Gones de L'IMMO Agence